Critical 6-Inch Gas Line Repaired Safely in a High-Angle Bridge Environment

Project Overview

When advanced corrosion was identified on a critical 6-inch gas line just ahead of winter, the window to act was narrow and the consequences of delay were significant. The line plays an important role in supplying essential energy to the local community, making safe, efficient execution the priority from the outset. Acuren was engaged to deliver a safe and efficient repair solution in a high-angle bridge environment, where access challenges and time constraints required a highly coordinated and controlled approach.

Project Impact

  • Delivered a safe, zero-incident repair in a high-angle bridge environment
  • Restored the integrity of a critical gas line ahead of winter conditions
  • Reduced complexity and exposure through a fully integrated, in-house execution model
  • Demonstrated an efficient alternative to traditional access and repair methods

A Complex Repair in a High-Consequence Setting

This was not a routine maintenance job. The asset was located in an elevated, difficult-to-access environment where conventional methods would have added time, cost, and operational exposure.

The repair also required a high standard of control, quality, and safety due to the condition of the line and the importance of restoring long-term integrity. With limited time before winter conditions set in, execution needed to be both precise and efficient.

One Team, Full-Scope Execution

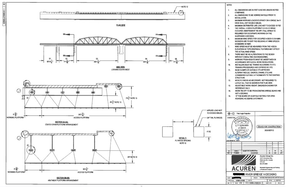
Acuren delivered a fully integrated repair solution using engineered rope access and a custom V-deck system, allowing the team to access and execute work in a challenging high-angle environment safely.

The project was managed in-house from planning through final turnover, reducing handoffs and improving coordination across all phases of work.

Acuren’s team executed the repair from end to end, including:

  • project planning and management
  • engineering design and issued-for-construction deliverables
  • rope access execution in a live, elevated environment
  • blasting, coating, and surface preparation
  • code welding and replacement of pup sections
  • composite wrap repair
  • inspection, QA/QC, and final turnover documentation

Bringing engineering, NDT, rope access, and repair execution together under one roof allowed the work to move with tighter control over schedule, safety, and quality, while limiting exposure hours in a complex access setting.

The Outcome

The result was safe execution, zero incidents, and a fully restored asset positioned for long-term service.

Just as important, the project demonstrated a more efficient and controlled alternative to traditional access and repair methods in high-angle environments.

For owners and operators managing aerial crossings, bridge-supported lines, stacker/reclaimers, and other difficult-access assets, the takeaway is clear: complex repairs require more than technical skill alone. They require integrated planning, engineered access, disciplined execution, and teams that can solve the entire problem, not just one part of it.

Conclusion

This project highlights how Acuren delivers safe, efficient repair solutions in high-consequence and difficult-access environments. By combining engineering, access, inspection, and repair capabilities into a single, coordinated team, we help operators reduce risk, improve execution, and restore critical assets with confidence.

If you are managing similar challenges, contact us to learn how Acuren can support your team.

About the Author

  • Senior GM, Canada Pacific

    Andrew is the Senior General Manager for Pacific Operations, with over 20 years of experience in failure analysis, risk management, and asset integrity. He oversees engineering, lab, NDE, and rope access services, driving efficiency, safety, and exceptional customer service. As a registered professional engineer, Andrew specializes in delivering tailored solutions for the life extension of large-scale industrial assets.

    Read More
Share the Post:
Related Posts

To help meet growing energy demand, Acuren provided engineering and design services for a portfolio of gate station projects. These included construction drawing packages for both new builds and replacement stations across a major utility network.

A mid-size pipeline operator preparing for a system sale needed to rapidly establish confidence in the integrity of a large gathering network spanning more than 6,000 miles. With limited historical data and a firm transaction timeline, the operator required a comprehensive integrity assessment that would meet regulatory expectations while minimizing operational disruption. Acuren partnered with Mid-America Pipeline Construction to deliver a coordinated, end-to-end integrity solution that assessed, analyzed, and rehabilitated the system, positioning the operator for a successful sale.

Achieve Higher Reliability with Acuren

Speak to our team about this project or to find out how we can help solve your complex challenges

Contact Us Arrow Icon
Skip to content